陜西航天泵閥科技集團有限公司是以研發、生產、銷售及服務為一體的高新技術型化工閥門生產企業,專業生產鍛造球閥、三通球閥、清管閥、料漿閥、石油化工設備等產品,閥門品種齊全,在行業內率先通過ISO9001,CE國際認證等,并在各領域投入使用,用戶對我公司閥門產品高度認可,咨詢熱線:400-1800-803。
三通料漿閥通常用作改變介質的流動方向和分配介質,該產品具有手動、電動、氣動、齒輪傳動等多種驅動方式。三通料漿閥在制紙、醫藥、染料化工、氧化鋁漿料等使用廣泛。
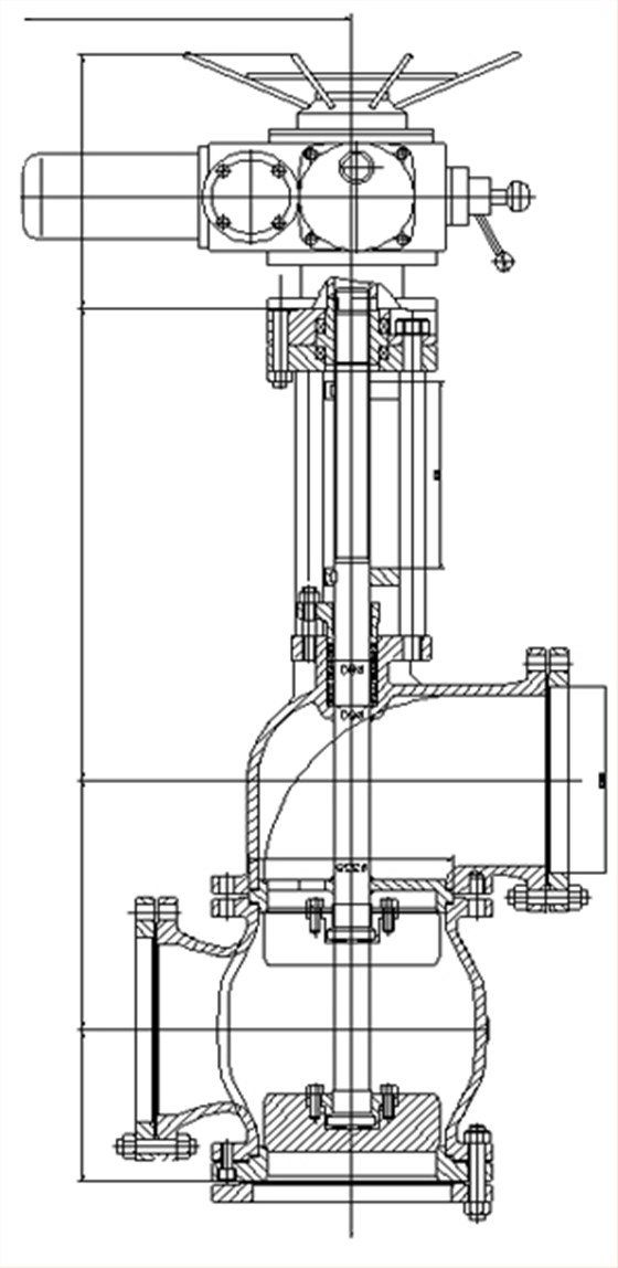
三通料漿閥
三通料漿閥的閥門結構:
1、閥瓣具有上下兩個密封面,可實現雙向密封。
2、上閥座對閥桿有支撐作用,可有效減小閥桿的彎曲變形。
3、填料箱下部設計有除污結構,能去除閥桿上的污物,防止污物對填料的損傷。
4、閥桿密封處,選用了柔性石墨和編織柔性石墨相結合。在填料箱中部為多層柔性石墨環,在柔性石墨環的上下為編織柔性石墨,編織柔性石墨填料能起到增加填料彈性,防止柔性石墨環被擠出的作用。
5、填料壓蓋有填料壓套和填料壓板組成,兩者通過球面副組合而成,當壓板上的螺母旋緊程度不均勻時,填料仍能均勻受壓,不至于影響填料密封。
6、手動裝置手輪采用撞擊式手輪,利用手輪的撞擊力來增加閥門的開啟及關閉力矩。
三通料漿閥結構圖
三通料漿閥的注意事項:
1、本閥門應存放于干燥的庫房內,嚴禁漏天存放。閥門通道應用封頭堵塞。如長期存放,應經常檢查,防止腐蝕。
2、安裝前,須仔細核對本閥門的標志、合格證是否符合使用要求,核實后,清洗管路,防止雜物進入閥門通道。安裝時應注意閥門對介質流向的要求。
3、發現故障應立即停止使用,查明原因并消除后再使用。
陜西航天泵閥科技集團有限公司堅持為客戶提供滿意的產品和服務,如果您有相關產品需求或者技術疑問,請撥免費熱線,陜西航天泵閥科技集團竭誠為您服務!
陜西航天泵閥公眾號
航天泵閥——40年行業經驗沉淀閥門品牌,您身邊的閥門專家!為您提供最優質的產品與最有效的閥門問題解決方案,航天泵閥以“品質和產品”對待每個客戶,為您服務!免費熱線:400-1800-803。

全焊接鍛鋼固定球閥
固定式鍛鋼球閥
直埋(埋地)式全焊接球閥
供熱專用全焊接球閥